Index Contact en
Projet

Maison D.

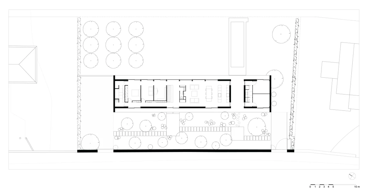
Le terrain sur lequel est implantée la maison se situe à Vic-le-Comte en Auvergne, à la limite du village. Le site offre à l’est une vue à cent quatre-vingt degrés sur « La Petite Toscane Auvergnate ». À l’ouest, le long de la route, un mur de pierres d’arkose blonde, dans la continuité des anciens murs, abrite un jardin qui s’étire le long de la façade sur trente-cinq mètres. À l’arrière apparaît un monolithe de béton brut étiré dans le paysage et évidé d’une fenêtre de 35 m. L’ensemble constitue le cadre de la vue panoramique, pièce maîtresse. La position des façades en retrait permet de ménager des coursives couvertes qui constituent un seuil entre l’intérieur et l’extérieur.


Au sol, un seul et même matériau est mis en place pour ne pas rompre la continuité dedans-dehors : la pierre de Volvic. Le traitement se poursuit jusqu’aux margelles du bassin de nage en continuité avec une terrasse couverte, inscrit très naturellement dans le paysage. À l’intérieur, la distribution est doublée d’une enfilade permettant à chaque pièce de profiter de la vue de la pièce voisine, augmentant ainsi l’effet panoramique en position ouverte. En position fermée, le système de cloison avec portes coulissantes permet à chacun de retrouver son intimité. L’annexe jouxtant la terrasse permet d’accueillir les invités en toute tranquillité. Un long volet coulissant à claire-voie en red cedar vient se rabattre sur chaque façade pour tamiser la lumière sans occulter la vue à l’extérieur.

Le terrain sur lequel est implantée la maison se situe à Vic-le-Comte en Auvergne, à la limite du village. Le site offre à l’est une vue à cent quatre-vingt degrés sur « La Petite Toscane Auvergnate ». À l’ouest, le long de la route, un mur de pierres d’arkose blonde, dans la continuité des anciens murs, abrite un jardin qui s’étire le long de la façade sur trente-cinq mètres. À l’arrière apparaît un monolithe de béton brut étiré dans le paysage et évidé d’une fenêtre de 35 m. L’ensemble constitue le cadre de la vue panoramique, pièce maîtresse. La position des façades en retrait permet de ménager des coursives couvertes qui constituent un seuil entre l’intérieur et l’extérieur.


Au sol, un seul et même matériau est mis en place pour ne pas rompre la continuité dedans-dehors : la pierre de Volvic. Le traitement se poursuit jusqu’aux margelles du bassin de nage en continuité avec une terrasse couverte, inscrit très naturellement dans le paysage. À l’intérieur, la distribution est doublée d’une enfilade permettant à chaque pièce de profiter de la vue de la pièce voisine, augmentant ainsi l’effet panoramique en position ouverte. En position fermée, le système de cloison avec portes coulissantes permet à chacun de retrouver son intimité. L’annexe jouxtant la terrasse permet d’accueillir les invités en toute tranquillité. Un long volet coulissant à claire-voie en red cedar vient se rabattre sur chaque façade pour tamiser la lumière sans occulter la vue à l’extérieur.

Prix
Lauréat du prix Archinovo 2015
Lieu
Vic-le-Comte, Auvergne
Maîtrise d’oeuvre
dd.a, mandataires
Claudia Devaux, paysage
BETMI, structure
Forgue, économie
Louis Choulet, fluides + HQE
Maîtrise d’ouvrage
Privé
Programme
Résidence privée
Surface
244 mSHON
Calendrier
2013
maison_d_voeux-def-02
dmron4-7
dev8uu-p
dmron4-4
maison_d_horizon-02
maison_d_horizon-11
md_plan-masse_01
coupe-sans-hachures
md_plan
Contenus associés