Index Contact fr
Project

House D

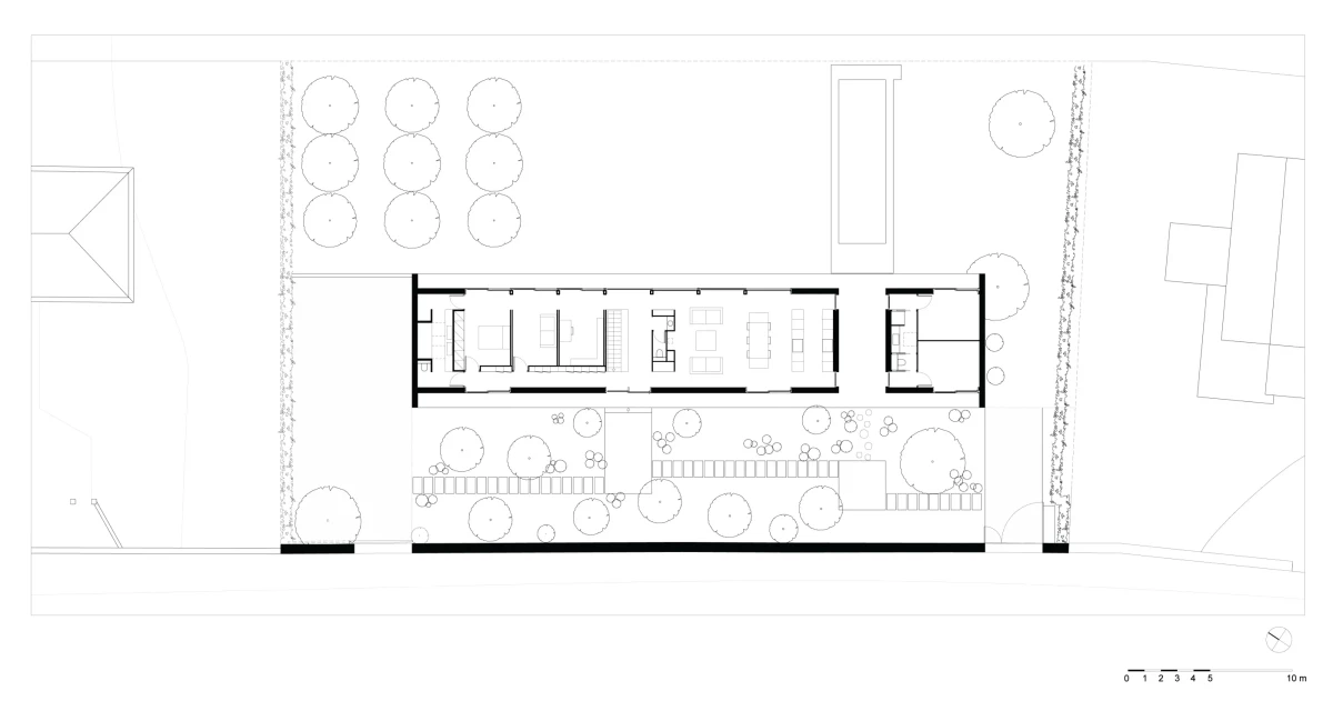
The house stands on a plot in Vic-le-Comte, in the Auvergne region, right at the edge of the village. To the east, the site opens onto a sweeping 180-degree view across what is known as “La Petite Toscane Auvergnate” – the Little Tuscan Auvergne. On the western side, along the road, a wall built of blond arkose stone extends the line of the old village enclosures and shelters a garden running the full length of the façade for thirty-five metres. At the back, a raw concrete monolith stretches into the landscape, carved through by a 35-metre-long horizontal window. Together, these elements form the frame for the panoramic view, the composition’s focal point. The recessed façades create covered passageways that act as thresholds between interior and exterior. The exterior joinery is made of oak.

A single floor material — Volvic stone — runs throughout, ensuring a seamless transition between inside and out. The same treatment continues to the edges of the swimming pool, in continuity with the covered terrace, which sits naturally within the landscape. Inside, the layout is organised as a double circulation, an enfilade that allows each room to share the view of the next, enhancing the panoramic effect when doors are open. When closed, the system of partitions with sliding doors restores privacy to each space. The annex adjoining the terrace provides quiet, self-contained accommodation for guests. Long sliding shutters made of open-slatted red cedar fold across each façade, filtering the light while preserving the view of the surrounding landscape.

The house stands on a plot in Vic-le-Comte, in the Auvergne region, right at the edge of the village. To the east, the site opens onto a sweeping 180-degree view across what is known as “La Petite Toscane Auvergnate” – the Little Tuscan Auvergne. On the western side, along the road, a wall built of blond arkose stone extends the line of the old village enclosures and shelters a garden running the full length of the façade for thirty-five metres. At the back, a raw concrete monolith stretches into the landscape, carved through by a 35-metre-long horizontal window. Together, these elements form the frame for the panoramic view, the composition’s focal point. The recessed façades create covered passageways that act as thresholds between interior and exterior. The exterior joinery is made of oak.

A single floor material — Volvic stone — runs throughout, ensuring a seamless transition between inside and out. The same treatment continues to the edges of the swimming pool, in continuity with the covered terrace, which sits naturally within the landscape. Inside, the layout is organised as a double circulation, an enfilade that allows each room to share the view of the next, enhancing the panoramic effect when doors are open. When closed, the system of partitions with sliding doors restores privacy to each space. The annex adjoining the terrace provides quiet, self-contained accommodation for guests. Long sliding shutters made of open-slatted red cedar fold across each façade, filtering the light while preserving the view of the surrounding landscape.

Award
Winner of Archinovo Award 2015
Location
Vic-le-Comte, Auvergne
Projet Management
dd.a, lead architects
Claudia Devaux, landscaper
BETMI, structure
Forgue, economist
Louis Choulet, fluids + HQE
Projet Owner
Private
Programme
Private residency
Area
244 sqm SHON
Calendar
2013
maison_d_voeux-def-02
dmron4-7
dev8uu-p
dmron4-4
maison_d_horizon-02
maison_d_horizon-11
md_plan-masse_01
coupe-sans-hachures
md_plan
Related content