Index Contact en
Projet

Maison M.

Le terrain, situé à Meudon, est issu de la division du jardin d’une villa en cinq lots, chacun soumis à des règles précises de construction, notamment le principe de double alignement visant à séquencer la perspective sur la rue. La parcelle, orientée Nord-Sud, s’ouvre au nord sur la voie ferrée et l’accès principal, tandis que le sud accueille un jardin en cœur d’îlot, protégé des regards. Les bâtiments voisins délimitent les limites est et ouest, c’est donc naturellement au nord, au sud et sur le toit que pouvaient s’organiser les ouvertures, imposant un jeu subtil d’orientation et de lumière dans la conception de la maison.

Le programme souhaité par le client comprenait quatre chambres, un séjour, un bassin de nage et un sauna, complété par des exigences spécifiques : respecter la charte architecturale définissant les cinq maisons du lotissement, tout en créant des volumes fluides et ouverts. Créer une forte relation entre l’intérieur et l’extérieur pour maximiser la lumière et les vues, tout en garantissant des espaces extérieurs protégés du vent, des regards voisins et de l’impact sonore de la gare de Bellevue située à une centaine de mètres. Enfin, assurer une grande capacité de rangement pour les livres sans pour autant encombrer les murs de larges bibliothèques encombrantes.

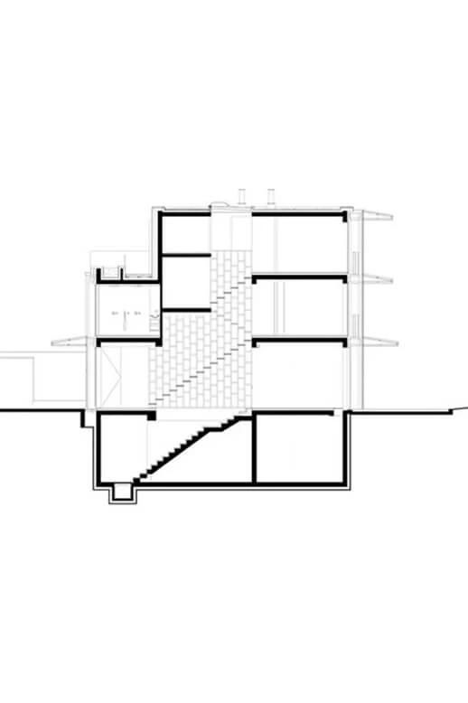
La maison s’organise avec les espaces « servis » au sud pour profiter du soleil et du jardin, et les espaces « servants » au nord. Les verrières en toiture baignent le bassin et l’escalier de lumière naturelle, et les perspectives traversantes à chaque niveau accentuent la continuité intérieure-extérieure. La façade sud s’ouvre entièrement sur le jardin grâce à des volets « papillon » modulant l’intimité et l’ensoleillement en qualité de brise-soleil. Le nord, équipé des mêmes volets, protège l’entrée et sécurise la maison. L’escalier-bibliothèque central distribue verticalement les étages sous un puits de lumière. Le séjour s’ouvre sur la cuisine, cœur de la maison, et sur le jardin paysagé dont nous avons également assuré la conception. Le bassin de nage en double hauteur au premier étage se prolonge au sud par un solarium surplombant le jardin.

Les ambiances intérieures mettent en valeur la simplicité et la finesse des matériaux : sols en béton mat, bois naturel pour les menuiseries structurantes, murs et plafonds blancs. Les volets à claire-voie en red cedar, visibles depuis l’intérieur, offrent protection, intimité et tamisage de la lumière sans obstruer la vue, créant une atmosphère raffinée et épurée. Chaque choix de matériau et de détail contribue à faire de cette maison bien plus qu’un simple logement, offrant une expérience spatiale et sensorielle cohérente sur l’ensemble des espaces.

Le terrain, situé à Meudon, est issu de la division du jardin d’une villa en cinq lots, chacun soumis à des règles précises de construction, notamment le principe de double alignement visant à séquencer la perspective sur la rue. La parcelle, orientée Nord-Sud, s’ouvre au nord sur la voie ferrée et l’accès principal, tandis que le sud accueille un jardin en cœur d’îlot, protégé des regards. Les bâtiments voisins délimitent les limites est et ouest, c’est donc naturellement au nord, au sud et sur le toit que pouvaient s’organiser les ouvertures, imposant un jeu subtil d’orientation et de lumière dans la conception de la maison.

Le programme souhaité par le client comprenait quatre chambres, un séjour, un bassin de nage et un sauna, complété par des exigences spécifiques : respecter la charte architecturale définissant les cinq maisons du lotissement, tout en créant des volumes fluides et ouverts. Créer une forte relation entre l’intérieur et l’extérieur pour maximiser la lumière et les vues, tout en garantissant des espaces extérieurs protégés du vent, des regards voisins et de l’impact sonore de la gare de Bellevue située à une centaine de mètres. Enfin, assurer une grande capacité de rangement pour les livres sans pour autant encombrer les murs de larges bibliothèques encombrantes.

La maison s’organise avec les espaces « servis » au sud pour profiter du soleil et du jardin, et les espaces « servants » au nord. Les verrières en toiture baignent le bassin et l’escalier de lumière naturelle, et les perspectives traversantes à chaque niveau accentuent la continuité intérieure-extérieure. La façade sud s’ouvre entièrement sur le jardin grâce à des volets « papillon » modulant l’intimité et l’ensoleillement en qualité de brise-soleil. Le nord, équipé des mêmes volets, protège l’entrée et sécurise la maison. L’escalier-bibliothèque central distribue verticalement les étages sous un puits de lumière. Le séjour s’ouvre sur la cuisine, cœur de la maison, et sur le jardin paysagé dont nous avons également assuré la conception. Le bassin de nage en double hauteur au premier étage se prolonge au sud par un solarium surplombant le jardin.

Les ambiances intérieures mettent en valeur la simplicité et la finesse des matériaux : sols en béton mat, bois naturel pour les menuiseries structurantes, murs et plafonds blancs. Les volets à claire-voie en red cedar, visibles depuis l’intérieur, offrent protection, intimité et tamisage de la lumière sans obstruer la vue, créant une atmosphère raffinée et épurée. Chaque choix de matériau et de détail contribue à faire de cette maison bien plus qu’un simple logement, offrant une expérience spatiale et sensorielle cohérente sur l’ensemble des espaces.

Lieu
Meudon, Hauts-de-Seine
Maîtrise d’œuvre
dd.a, architectes
Choulet, fluides
Maîtrise d’ouvrage
Privée
Programme
Logement privé
Surface
260 m²
Calendrier
2016
Prix
Grand prix du jury Archinovo 2017
Achitectures à vivre, catégorie “maison connectée”, juin 2017
Sélection au ArchiDesignClub Award 2018 dans la catégorie Logement / Maison
4-facade-jardin-fermee
5-facade-jardin-ouverte
plan-sans-cote
coupe-sans-cote-2
facade-rue-nord-2
dda-joan-bracco-8-1196x1900
maison_m-16
Contenus associés