Index Contact en
Projet

Centre culturel Paul Bailliart

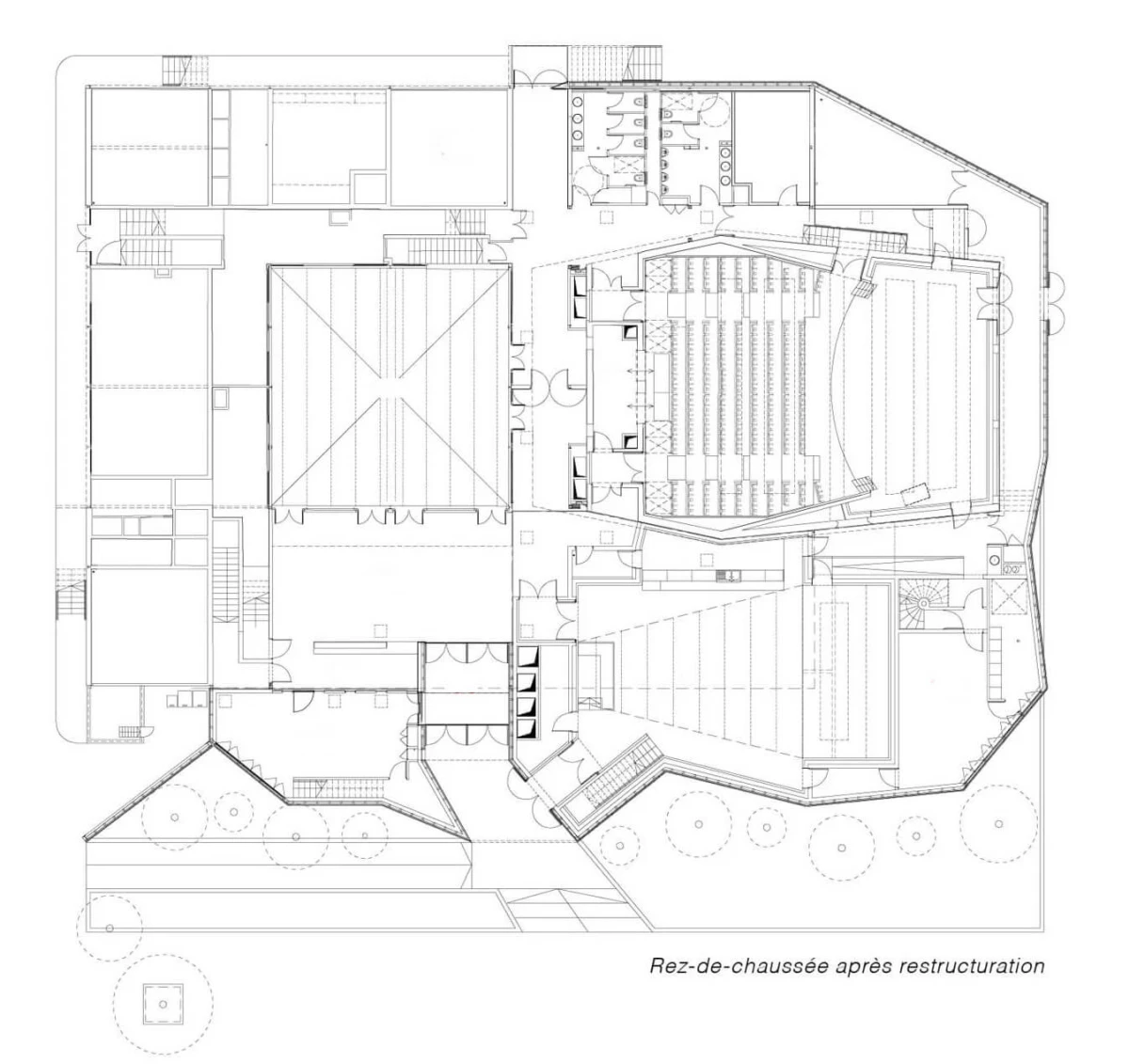
Le Centre culturel Paul Bailliart, à Massy, accueille des spectacles de musique vivante, des artistes en résidence et le festival annuel « Les Primeurs ». La restructuration du bâtiment de 1966 répond à plusieurs enjeux : améliorer l’accueil du public et des artistes, se conformer aux normes de sécurité et acoustiques, et renforcer l’identité visuelle de l’équipement. Les espaces intérieurs ont été entièrement repensés : la salle café-concert a été agrandie pour 190 personnes, tandis que la salle principale dispose de gradins mobiles permettant d’accueillir 330 spectateurs assis ou 550 debout. Les flux public/artistes ont été clarifiés par le repositionnement des issues de secours, des loges et des locaux techniques. Le hall d’accueil, élargi, se prolonge dans un patio pouvant être couvert selon les usages.

L’ensemble du bâtiment est enveloppé d’une coque acoustique multicouche conçue pour limiter les nuisances sonores sur les habitations voisines. La façade principale, composée de panneaux en tasseaux de bois verticaux assemblés en plis, traduit le développement fonctionnel interne du programme tout en offrant un rythme et une matérialité qui soulignent l’extension. Cette « peau » permet de reconfigurer l’image de l’édifice vieillissant, en donnant à voir le bâtiment original par endroits, tout en habillant l’ensemble d’une couche contemporaine qui dialogue avec le quartier.

Le projet confère au Centre culturel une présence à la fois moderne et fonctionnelle, offrant à la communauté une véritable « boîte à musique ». La qualité de l’extension et de la restructuration a été reconnue par le prix Grand Public des Architectures Contemporaines de la Métropole Parisienne dans la catégorie Culture, soulignant la capacité du projet à conjuguer performance technique, confort des utilisateurs et identité visuelle forte.

Le Centre culturel Paul Bailliart, à Massy, accueille des spectacles de musique vivante, des artistes en résidence et le festival annuel « Les Primeurs ». La restructuration du bâtiment de 1966 répond à plusieurs enjeux : améliorer l’accueil du public et des artistes, se conformer aux normes de sécurité et acoustiques, et renforcer l’identité visuelle de l’équipement. Les espaces intérieurs ont été entièrement repensés : la salle café-concert a été agrandie pour 190 personnes, tandis que la salle principale dispose de gradins mobiles permettant d’accueillir 330 spectateurs assis ou 550 debout. Les flux public/artistes ont été clarifiés par le repositionnement des issues de secours, des loges et des locaux techniques. Le hall d’accueil, élargi, se prolonge dans un patio pouvant être couvert selon les usages.

L’ensemble du bâtiment est enveloppé d’une coque acoustique multicouche conçue pour limiter les nuisances sonores sur les habitations voisines. La façade principale, composée de panneaux en tasseaux de bois verticaux assemblés en plis, traduit le développement fonctionnel interne du programme tout en offrant un rythme et une matérialité qui soulignent l’extension. Cette « peau » permet de reconfigurer l’image de l’édifice vieillissant, en donnant à voir le bâtiment original par endroits, tout en habillant l’ensemble d’une couche contemporaine qui dialogue avec le quartier.

Le projet confère au Centre culturel une présence à la fois moderne et fonctionnelle, offrant à la communauté une véritable « boîte à musique ». La qualité de l’extension et de la restructuration a été reconnue par le prix Grand Public des Architectures Contemporaines de la Métropole Parisienne dans la catégorie Culture, soulignant la capacité du projet à conjuguer performance technique, confort des utilisateurs et identité visuelle forte.

Prix
Prix grand public des architectures contemporaines de la Métropole Parisienne dans la catégorie culture
Lieu
Massy, Essonne
Maîtrise d’œuvre
dd.a, mandataires
Fassio-Viaud, architectes associés
Batiserf, structure
Louis Choulet, fluides
Capri acoustique, acousticien
BMF, économiste
Maîtrise d’ouvrage
Ville de Massy
Programme
Restructuration et extension du centre Paul Bailliart : restructuration et extension du hall et de la grande salle, création d’une salle de café concert, de loges, de bureaux et d’un studio d’enregistrement
Surface / Coût
Rénovation : 1 114mSHON — extension : 774 m2 SHON /
Phase 1 : 3,65 M€ h.t. — phase 2 : 230 K€ h.t.
Calendrier
Phase 1 : 2007
Phase 2 : 2010
massy-facade-02r
massy-grandesalle-01
massy-salleclub-01
massy-facade-entree-01
plan
Contenus associés